Aceasta proprietate a fost deja vanduta! Pentru oferte similare contactati agentul
Apartament cu 3 camere, decomandat, Girocului
ID: V8475 Timisoara, Girocului
145
105.990€


























Camere
3
Suprafata utila
65 mp
Etaj
Etaj 1
Bai
2
An constructie
1978
Apartament cu 3 camere, decomandat, Girocului Descriere
Apartament cu 3 camere de vanzare in Timisoara, zona Girocului.
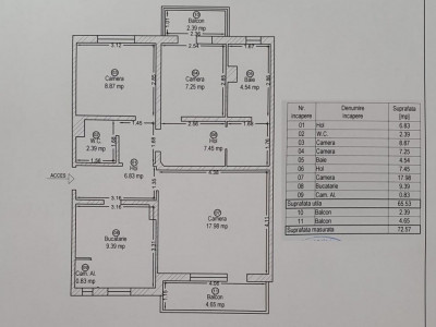
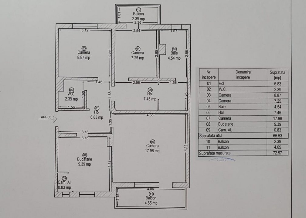
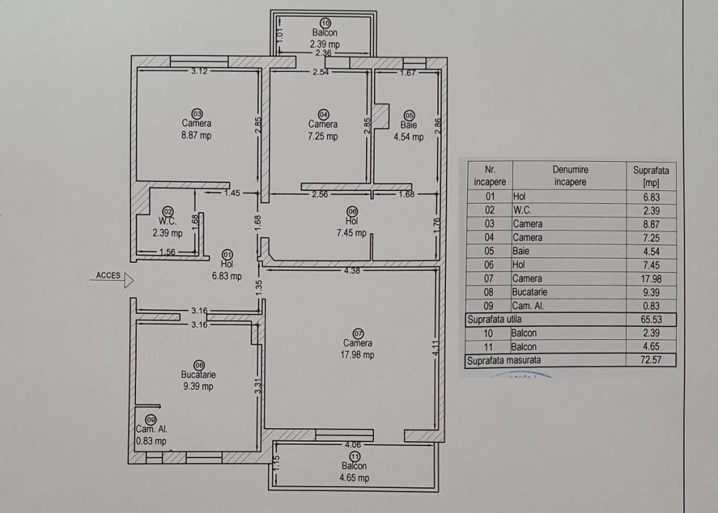
FOXFORT propune spre vanzare un apartament cu 3 camere, decomandat, situat in localitatea Timisoara, zona Girocului, aflat la etajul 1 intr-un bloc cu regim de inaltime pe Parter + 4 Etaje. Anul constructiei 1978, structura beton, material zidarie caramida. Suprafata utila de 65 mp.
Apartamentul este structurat astfel:
- Hol;
- Bucatarie;
- Baie;
- Living;
- 2 Dormitoare;
- Hol intermediar.
Finisajele interioare sunt clasice:
- Usa intrare: metal;
- Usi interioare: celulare;
- Tamplarie ferestre: pvc;
- Podele: parchet, gresie.
Apartamentul se vinde mobilat si semiutilat: aragaz, masina de spalat rufe, frigider cu congelator.
Incalzirea se realizeaza prin intermediul termoficarii orasului calorifere. Apartamentul dispune de sistem de climatizare (A.C.).
Pretul este de 105.990€ + comisionul standard al agentiei.
Se accepta ca si modalitate de plata surse proprii sau credit bancar.
Indicator performanta energetica: Clasa B
ID intern: V8475
Citeste mai mult
FOXFORT propune spre vanzare un apartament cu 3 camere, decomandat, situat in localitatea Timisoara, zona Girocului, aflat la etajul 1 intr-un bloc cu regim de inaltime pe Parter + 4 Etaje. Anul constructiei 1978, structura beton, material zidarie caramida. Suprafata utila de 65 mp.
Apartamentul este structurat astfel:
- Hol;
- Bucatarie;
- Baie;
- Living;
- 2 Dormitoare;
- Hol intermediar.
Finisajele interioare sunt clasice:
- Usa intrare: metal;
- Usi interioare: celulare;
- Tamplarie ferestre: pvc;
- Podele: parchet, gresie.
Apartamentul se vinde mobilat si semiutilat: aragaz, masina de spalat rufe, frigider cu congelator.
Incalzirea se realizeaza prin intermediul termoficarii orasului calorifere. Apartamentul dispune de sistem de climatizare (A.C.).
Pretul este de 105.990€ + comisionul standard al agentiei.
Se accepta ca si modalitate de plata surse proprii sau credit bancar.
Indicator performanta energetica: Clasa B
ID intern: V8475
Caracteristici
- ID:V8475
- Nr. camere:3
- Nr. dormitoare:2
- S. utila:65.00 mp
- S. construita:78.00 mp
- Comp.:Decomandat
- Confort:1
- Etaj:Etaj 1
- Nr. bucatarii:1
- Nr. bai:2
- An constructie:1978
- Structura:Beton
- Tip imobil:Bloc
- Regim inaltime:P+4
- Orientare:Sud-Est
- Clasa energetica:B
Apartament cu 3 camere, decomandat, Girocului Specificatii
Curent
Apa
Canalizare
Gaz
CATV
Fibra optica
Termoficare
Calorifere
Aer conditionat
Vopsea lavabila
Faianta
Parchet
Gresie
Ferestre PVC
Usa intrare Metal
Usa interior Celulare
Debara
Bucatarie Mobilata
Bucatarie Partial utilata
Apometre
Partial mobilat
Interfon
Localizare
Contacteazǎ agentul acum
0373760385
Esti interesat de aceasta proprietate ?
Completeaza datele tale și te vom suna noi!
Te-ar putea interesa si:
Case de vânzare Mosnita Noua
Case de vânzare Sanandrei
Apartamente de vânzare Giroc
Terenuri de vânzare Timisoara
Recomandari
Contacteazǎ agentul acum
0373760385
Linkuri rapide filtrate dupa cele mai cautate zone si numarul de camere
Apartamente de vânzare Timisoara
Apartamente de vânzare Timisoara zona Girocului
Apartamente de vânzare Timisoara 3 camere
Apartamente de vânzare Timisoara zona Girocului 3 camere