Apartament deosebit, 3 camere, zona Central – Bld. C.D. Loga
ID: V8701 Timisoara, Central
455
429.990€





























Camere
3
Suprafata utila
135.80 mp
Etaj
Etaj 1
Bai
3
An constructie
1930
Apartament deosebit, 3 camere, zona Central – Bld. C.D. Loga Descriere
Apartament 3 camere de vanzare – Timisoara, zona Central, Bld. C.D. Loga
In inima Timisoarei, pe unul dintre cele mai frumoase si reprezentative bulevarde ale orasului – C.D. Loga – FOXFORT propune spre vanzare un apartament de 3 camere, cu un farmec aparte.
Imobilul a fost construit in anul 1930, intr-o perioada in care arhitectura central-europeana lasa o amprenta puternica asupra orasului, iar cladirile din zona centrala au fost gandite pentru a imbina eleganta cu durabilitatea. Renovarea completa realizata in 2024 readuce acest apartament la viata, pastrand nobletea originara si adaugand confortul cerut de standardele actuale.
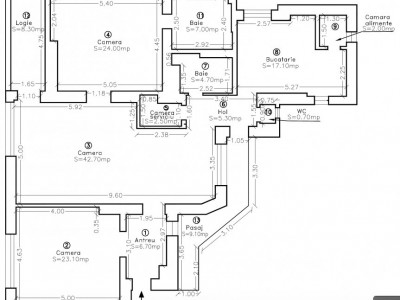
Apartamentul este situat la etajul 1 al unei cladiri cu regim de inaltime Parter + 2 Etaje si are o suprafata totala generoasa de 153,2 mp, din care un balcon/logie de 8,3 mp, ideal pentru momentele de relaxare.
Detalii si dotari:
• decomandat, structura si zidarie din caramida
• finisaje de lux: usa de intrare si usi interioare din lemn, tamplarie din lemn cu termopan, pardoseli din parchet si gresie
• incalzire in pardoseala, centrala proprie
• apartamentul se vinde semimobilat si semiutilat
• beneficiaza de 1/6 din partile comune, inclusiv subsolul cu pivnite
Aceasta locuinta nu este doar un spatiu de locuit, ci o alegere de stil de viata: acces la zonele istorice si culturale ale orasului, la parcuri si la atmosfera vibranta a centrului Timisoarei, cu toate avantajele pe care doar zona Loga le poate oferi.
Pret: 429.990 €
Comision 0% pentru cumparatori
Modalitati de plata: surse proprii sau credit bancar
Indicator performanta energetica: Clasa B
ID intern: V8701
Citeste mai mult
In inima Timisoarei, pe unul dintre cele mai frumoase si reprezentative bulevarde ale orasului – C.D. Loga – FOXFORT propune spre vanzare un apartament de 3 camere, cu un farmec aparte.
Imobilul a fost construit in anul 1930, intr-o perioada in care arhitectura central-europeana lasa o amprenta puternica asupra orasului, iar cladirile din zona centrala au fost gandite pentru a imbina eleganta cu durabilitatea. Renovarea completa realizata in 2024 readuce acest apartament la viata, pastrand nobletea originara si adaugand confortul cerut de standardele actuale.
Apartamentul este situat la etajul 1 al unei cladiri cu regim de inaltime Parter + 2 Etaje si are o suprafata totala generoasa de 153,2 mp, din care un balcon/logie de 8,3 mp, ideal pentru momentele de relaxare.
Detalii si dotari:
• decomandat, structura si zidarie din caramida
• finisaje de lux: usa de intrare si usi interioare din lemn, tamplarie din lemn cu termopan, pardoseli din parchet si gresie
• incalzire in pardoseala, centrala proprie
• apartamentul se vinde semimobilat si semiutilat
• beneficiaza de 1/6 din partile comune, inclusiv subsolul cu pivnite
Aceasta locuinta nu este doar un spatiu de locuit, ci o alegere de stil de viata: acces la zonele istorice si culturale ale orasului, la parcuri si la atmosfera vibranta a centrului Timisoarei, cu toate avantajele pe care doar zona Loga le poate oferi.
Pret: 429.990 €
Comision 0% pentru cumparatori
Modalitati de plata: surse proprii sau credit bancar
Indicator performanta energetica: Clasa B
ID intern: V8701
Caracteristici
- ID:V8701
- Nr. camere:3
- Nr. dormitoare:2
- S. utila:135.80 mp
- S. balcoane:8.30 mp
- S. terase:9.10 mp
- S. utila totala:153.20 mp
- S. construita:180.00 mp
- Comp.:Decomandat
- Confort:Lux
- Etaj:Etaj 1
- Nr. bucatarii:1
- Nr. bai:3
- Nr. balcoane:2
- An constructie:1930
- An renovare:2024
- Structura:Caramida
- Tip imobil:Bloc
- Regim inaltime:D+P+2
- Orientare:Nord-Est
- Clasa energetica:B
- Consum specific:159.68
- Indice emisii:35.32
Apartament deosebit, 3 camere, zona Central – Bld. C.D. Loga Specificatii
Curent
Apa
Canalizare
Gaz
Curent trifazic
CATV
Telefon
Acces internet
Fibra optica
Centrala proprie
Incalzire pardoseala
Vopsea lavabila
Faianta
Parchet
Gresie
Ferestre Lemn
Ferestre Termopan
Rulouri Aluminiu
Usa intrare Lemn
Usa interior Lemn
Terasa
Wc serviciu
Boxa la subsol
Debara
Pivnita
Bucatarie Mobilata
Bucatarie Partial utilata
Apometre
Contor gaz
Partial mobilat
Acoperis
Curte
Curte comuna
Gradina
Localizare
Contacteazǎ agentul acum
0373760385
Esti interesat de aceasta proprietate ?
Completeaza datele tale și te vom suna noi!
Te-ar putea interesa si:
Case de vânzare Mosnita Noua
Case de vânzare Sanandrei
Apartamente de vânzare Giroc
Terenuri de vânzare Timisoara
Recomandari
Contacteazǎ agentul acum
0373760385
Linkuri rapide filtrate dupa cele mai cautate zone si numarul de camere
Apartamente de vânzare Timisoara
Apartamente de vânzare Timisoara zona Central
Apartamente de vânzare Timisoara 3 camere
Apartamente de vânzare Timisoara zona Central 3 camere