Direct proprietar Casa individuala de 123 mp utili cu pozitie centrala Urseni
ID: V8700 Urseni, Central
827
149.990€






















Camere
4
Suprafata utila
123.40 mp
Bai
1
Front stradal
38 m
An constructie
1940
Direct proprietar Casa individuala de 123 mp utili cu pozitie centrala Urseni Descriere
Comision 0% Casa individuala de 123 mp cu pozitie centrala Urseni
FOXFORT propune de vanzare casa tip individuala, cu un regim de inaltime Parter + Pod, situata in Urseni, zona Centrala, avand un numar de 4 camere, cu o suprafata utila de 123 mp si teren 630 mp. Anul constructiei este 1940 si 2010, structura beton, material zidarie vaiuga si caramida. Imobilul dispune de urmatoarele utilitati: curent electric trifazic, apa, canalizare, catv, fibra optica, gaz in curs de bransare si drum asfaltat.
Casa se vinde mobilata si utilata, exact ca in fotografii. Casa dispune de centrala proprie pe lemne cu calorifere (instalatia si caloriferele sunt noi) si soba de teracota functionala la nevoie.
Casa se prezinta intr-o stare buna si se poate ocupa imediat. Aceasta este situata la doar 200m de centrul satului, de magazine, Scoala si Biserica.
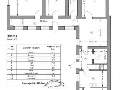
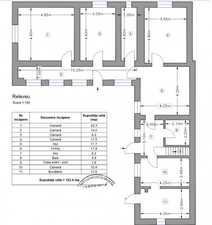
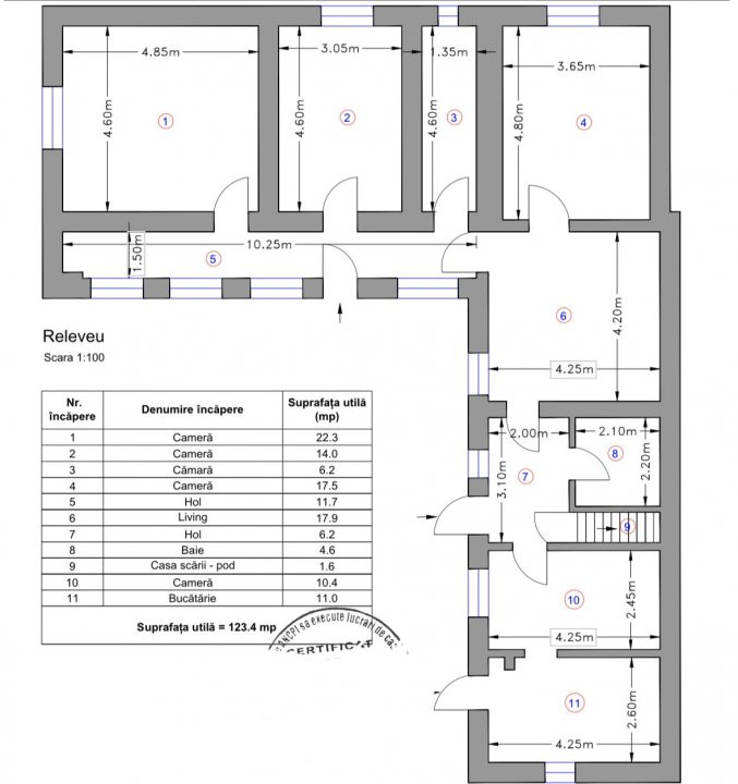
Compartimentarea este dispusa dupa cum urmeaza:
- Parter: hol, living, baie, bucatarie, 3 dormitoare, camera, camara si debara;
- Pod depozitare.
Finisajele interioare sunt calitative:
- Usa intrare: pvc;
- Usi interioare: celulare;
- Tamplarie ferestre: pvc;
- Podele: parchet, gresie.
Pretul este de 149.990€ - Comision 0%
Se accepta ca si modalitate de plata surse proprii.
Indicator performanta energetica: Clasa B
ID intern: V8700
Citeste mai mult
FOXFORT propune de vanzare casa tip individuala, cu un regim de inaltime Parter + Pod, situata in Urseni, zona Centrala, avand un numar de 4 camere, cu o suprafata utila de 123 mp si teren 630 mp. Anul constructiei este 1940 si 2010, structura beton, material zidarie vaiuga si caramida. Imobilul dispune de urmatoarele utilitati: curent electric trifazic, apa, canalizare, catv, fibra optica, gaz in curs de bransare si drum asfaltat.
Casa se vinde mobilata si utilata, exact ca in fotografii. Casa dispune de centrala proprie pe lemne cu calorifere (instalatia si caloriferele sunt noi) si soba de teracota functionala la nevoie.
Casa se prezinta intr-o stare buna si se poate ocupa imediat. Aceasta este situata la doar 200m de centrul satului, de magazine, Scoala si Biserica.
Compartimentarea este dispusa dupa cum urmeaza:
- Parter: hol, living, baie, bucatarie, 3 dormitoare, camera, camara si debara;
- Pod depozitare.
Finisajele interioare sunt calitative:
- Usa intrare: pvc;
- Usi interioare: celulare;
- Tamplarie ferestre: pvc;
- Podele: parchet, gresie.
Pretul este de 149.990€ - Comision 0%
Se accepta ca si modalitate de plata surse proprii.
Indicator performanta energetica: Clasa B
ID intern: V8700
Caracteristici
- ID:V8700
- Nr. camere:4
- Nr. dormitoare:3
- S. utila:123.40 mp
- S. terase:30.00 mp
- S. utila totala:153.40 mp
- S. construita:148.00 mp
- S. teren:630.00 mp
- Nr. bucatarii:1
- Nr. bai:1
- Nr. parcari:5
- Front stradal:38.00 m
- An constructie:1940
- Structura rezistenta:Beton
- Orientare:Sud
- Clasa energetica:B
Direct proprietar Casa individuala de 123 mp utili cu pozitie centrala Urseni Specificatii
Curent
Apa
Canalizare
Gaz
CATV
Fibra optica
Centrala proprie
Soba teracota
Calorifere
Vopsea lavabila
Faianta
Parchet
Gresie
Ferestre PVC
Usa intrare PVC
Usa interior Celulare
Spatiu depozitare
Dependinte
Bucatarie Mobilata
Bucatarie Utilata
Apometre
Complet mobilat
Curte
Gradina
Localizare
Contacteazǎ agentul acum
0373760385
Esti interesat de aceasta proprietate ?
Completeaza datele tale și te vom suna noi!
Te-ar putea interesa si:
Case de vânzare Mosnita Noua
Case de vânzare Sanandrei
Apartamente de vânzare Giroc
Terenuri de vânzare Timisoara
Recomandari
Contacteazǎ agentul acum
0373760385
Linkuri rapide filtrate dupa cele mai cautate zone si numarul de camere
Case de vânzare Urseni
Case de vânzare Urseni zona Central