Casa individuala cu 4 camere de vanzare, zona Girocului
ID: V9021 Timisoara, Girocului
370
159.990€



















Camere
4
Suprafata utila
96 mp
Bai
2
Front stradal
20 m
An constructie
1960
Casa individuala cu 4 camere de vanzare, zona Girocului Descriere
Casa individuala cu 4 camere de vanzare in localitatea Timisoara, zona Girocului.
FOXFORT propune spre vanzare casa tip individuala, cu un regim de inaltime Parter, situata in Timisoara, zona Girocului, avand un numar de 4 camere, cu o suprafata utila de 97 mp si teren 277 mp. Anul constructiei este 1960, structura caramida, material zidarie caramida. Imobilul dispune de urmatoarele utilitati: curent electric, apa, canalizare, gaz, catv, acces internet, fibra optica, utilitati in zona.
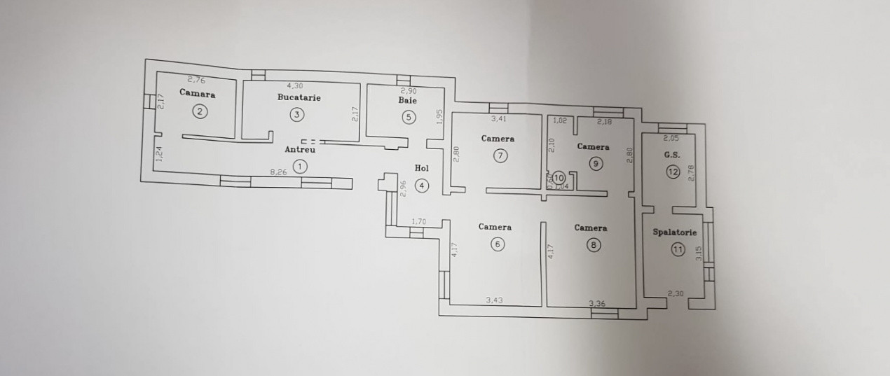
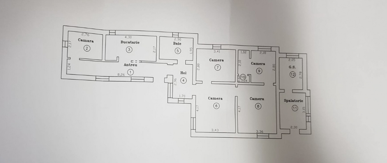
Compartimentarea este dispusa dupa cum urmeaza:
- Parter: hol, baie, living, 3 dormitoare, bucatarie, camara.
- Pod depozitare.
- Terasa, bucatarie vara, wc serviciu.
Finisajele interioare sunt moderne:
- Usa intrare: pvc;
- Usi interioare: celulare, lemn;
- Tamplarie ferestre: pvc;
- Podele: parchet, gresie.
Casa se vinde semimobilata si semiutilata: plita, cuptor, hota, aragaz.
Imobilul dispune de centrala proprie cu incalzire prin calorifere si 2 locuri de parcare.
Pretul este de 159.990€ - COMISION 0%.
Se accepta ca si modalitate de plata surse proprii sau credit bancar.
Indicator performanta energetica: Clasa D
ID intern: V9021
Citeste mai mult
FOXFORT propune spre vanzare casa tip individuala, cu un regim de inaltime Parter, situata in Timisoara, zona Girocului, avand un numar de 4 camere, cu o suprafata utila de 97 mp si teren 277 mp. Anul constructiei este 1960, structura caramida, material zidarie caramida. Imobilul dispune de urmatoarele utilitati: curent electric, apa, canalizare, gaz, catv, acces internet, fibra optica, utilitati in zona.
Compartimentarea este dispusa dupa cum urmeaza:
- Parter: hol, baie, living, 3 dormitoare, bucatarie, camara.
- Pod depozitare.
- Terasa, bucatarie vara, wc serviciu.
Finisajele interioare sunt moderne:
- Usa intrare: pvc;
- Usi interioare: celulare, lemn;
- Tamplarie ferestre: pvc;
- Podele: parchet, gresie.
Casa se vinde semimobilata si semiutilata: plita, cuptor, hota, aragaz.
Imobilul dispune de centrala proprie cu incalzire prin calorifere si 2 locuri de parcare.
Pretul este de 159.990€ - COMISION 0%.
Se accepta ca si modalitate de plata surse proprii sau credit bancar.
Indicator performanta energetica: Clasa D
ID intern: V9021
Caracteristici
- ID:V9021
- Nr. camere:4
- Nr. dormitoare:3
- S. utila:96.00 mp
- S. terase:16.00 mp
- S. utila totala:112.00 mp
- S. construita:133.00 mp
- S. teren:277.00 mp
- Nr. bucatarii:1
- Nr. bai:2
- Front stradal:20.00 m
- Nr. fronturi:2
- An constructie:1960
- An renovare:2024
- Structura rezistenta:Beton
- Clasa energetica:D
Casa individuala cu 4 camere de vanzare, zona Girocului Specificatii
Curent
Apa
Canalizare
Gaz
CATV
Fibra optica
Utilitati in zona
Centrala proprie
Calorifere
Aer conditionat
Izolatie Exterior
Vopsea lavabila
Faianta
Parchet
Gresie
Ferestre PVC
Usa intrare PVC
Usa interior Celulare
Usa interior Lemn
Spatiu depozitare
Anexe
Bucatarie Mobilata
Bucatarie Utilata
Apometre
Contor gaz
Partial mobilat
Curte
Localizare
Contacteazǎ agentul acum
0373760385
Esti interesat de aceasta proprietate ?
Completeaza datele tale și te vom suna noi!
Te-ar putea interesa si:
Case de vânzare Mosnita Noua
Case de vânzare Sanandrei
Apartamente de vânzare Giroc
Terenuri de vânzare Timisoara
Recomandari
Contacteazǎ agentul acum
0373760385
Linkuri rapide filtrate dupa cele mai cautate zone si numarul de camere
Case de vânzare Timisoara
Case de vânzare Timisoara zona Girocului