COMISION 0% Casa cu 4 camere 97 mp utili, teren 419 mp, zona Blascovici
ID: V9450 Timisoara, Blascovici
159
159.990€


























Camere
4
Suprafata utila
97 mp
Bai
2
Front stradal
12 m
An constructie
1976
COMISION 0% Casa cu 4 camere 97 mp utili, teren 419 mp, zona Blascovici Descriere
Casa cu 4 camere formata din 2 apartamente de vanzare in localitatea Timisoara, in Blascovici.
FOXFORT propune spre vanzare casa tip individuala, cu un regim de inaltime parter, situata in Timisoara, zona Blascovici, avand un numar de 4 camere, cu o suprafata utila de 97 mp si teren 419 mp. Anul constructiei este 1976, structura caramida, material zidarie caramida. Imobilul dispune de urmatoarele utilitati: curent electric, apa, canalizare, gaz, catv, fibra optica. Casa se vinde semi mobilata si semi utilata: aragaz, masina de spalat rufe, frigider. Confortul termic se realizeaza prin centrala proprie prin calorifere si aer conditionat.
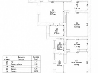
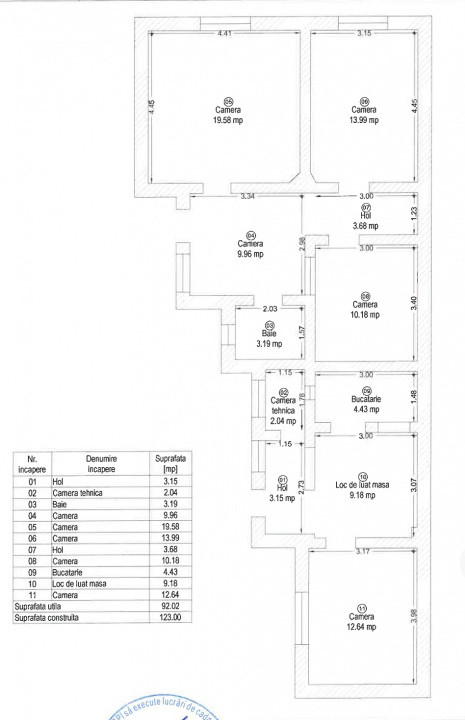
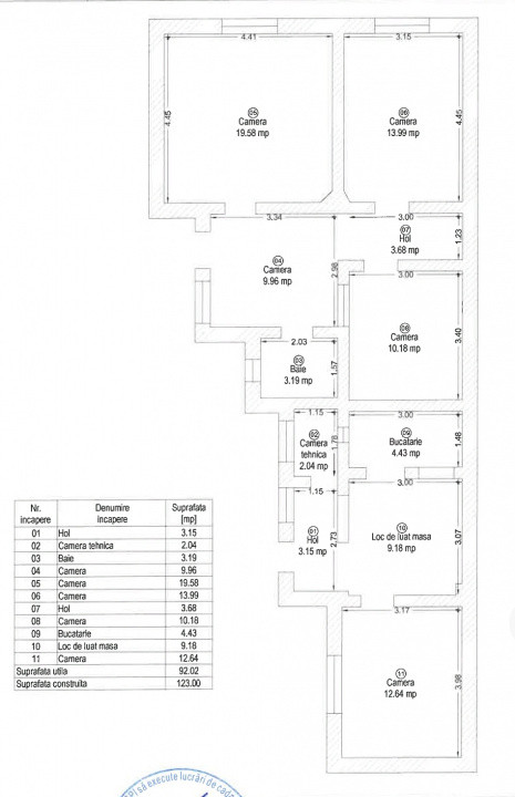
Compartimentarea este dispusa dupa cum urmeaza:
- Hol, living, baie, dormitor, dressing, dormitor;
- Hol, wc serviciu, living cu bucatarie, dormitor;
- Pod depozitare.
Finisajele interioare sunt moderne:
- Usa intrare: pvc;
- Usi interioare: celulare;
- Tamplarie ferestre: pvc, termopan;
- Podele: parchet, gresie.
Pretul este de 159.990€ - COMISION 0%.
Se accepta ca si modalitate de plata cash si credit bancar.
ID intern: V9450
Citeste mai mult
FOXFORT propune spre vanzare casa tip individuala, cu un regim de inaltime parter, situata in Timisoara, zona Blascovici, avand un numar de 4 camere, cu o suprafata utila de 97 mp si teren 419 mp. Anul constructiei este 1976, structura caramida, material zidarie caramida. Imobilul dispune de urmatoarele utilitati: curent electric, apa, canalizare, gaz, catv, fibra optica. Casa se vinde semi mobilata si semi utilata: aragaz, masina de spalat rufe, frigider. Confortul termic se realizeaza prin centrala proprie prin calorifere si aer conditionat.
Compartimentarea este dispusa dupa cum urmeaza:
- Hol, living, baie, dormitor, dressing, dormitor;
- Hol, wc serviciu, living cu bucatarie, dormitor;
- Pod depozitare.
Finisajele interioare sunt moderne:
- Usa intrare: pvc;
- Usi interioare: celulare;
- Tamplarie ferestre: pvc, termopan;
- Podele: parchet, gresie.
Pretul este de 159.990€ - COMISION 0%.
Se accepta ca si modalitate de plata cash si credit bancar.
ID intern: V9450
Caracteristici
- ID:V9450
- Nr. camere:4
- Nr. dormitoare:4
- S. utila:97.00 mp
- S. construita:112.00 mp
- S. teren:419.00 mp
- Nr. bucatarii:1
- Nr. bai:2
- Nr. parcari:1
- Front stradal:12.00 m
- Nr. fronturi:1
- An constructie:1976
- An renovare:2016
- Structura rezistenta:Caramida
- Orientare:Vest
- Clasa energetica:B
COMISION 0% Casa cu 4 camere 97 mp utili, teren 419 mp, zona Blascovici Specificatii
Curent
Apa
Canalizare
Gaz
CATV
Fibra optica
Centrala proprie
Calorifere
Aer conditionat
Izolatie Exterior
Vopsea lavabila
Faianta
Parchet
Gresie
Ferestre PVC
Ferestre Termopan
Rulouri PVC
Usa intrare PVC
Usa interior Celulare
Dressing
WC Serviciu
Bucatarie Partial mobilata
Bucatarie Partial utilata
Apometre
Contor gaz
Partial mobilat
Curte
Gradina
Localizare
Contacteazǎ agentul acum
0373760385
Esti interesat de aceasta proprietate ?
Completeaza datele tale și te vom suna noi!
Te-ar putea interesa si:
Case de vânzare Mosnita Noua
Case de vânzare Sanandrei
Apartamente de vânzare Giroc
Terenuri de vânzare Timisoara
Recomandari
Contacteazǎ agentul acum
0373760385
Linkuri rapide filtrate dupa cele mai cautate zone si numarul de camere
Case de vânzare Timisoara
Case de vânzare Timisoara zona Blascovici