Casa individuala la ROSU, 5 camere, Sacalaz-Gaz si curent bransat
ID: V8213 Sacalaz, Exterior Est
676
189.990€


















Camere
5
Suprafata utila
159 mp
Bai
3
Front stradal
57 m
An constructie
2025
Casa individuala la ROSU, 5 camere, Sacalaz-Gaz si curent bransat Descriere
Casa individuala cu 5 camere de vanzare in localitatea Sacalaz, zona Exterior Est.
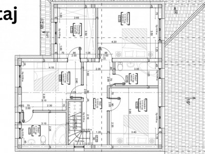
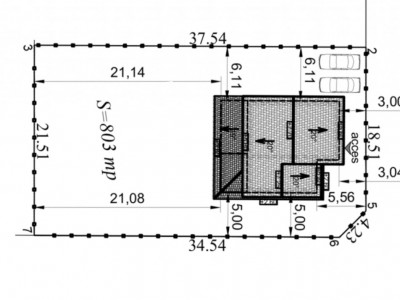
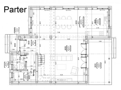
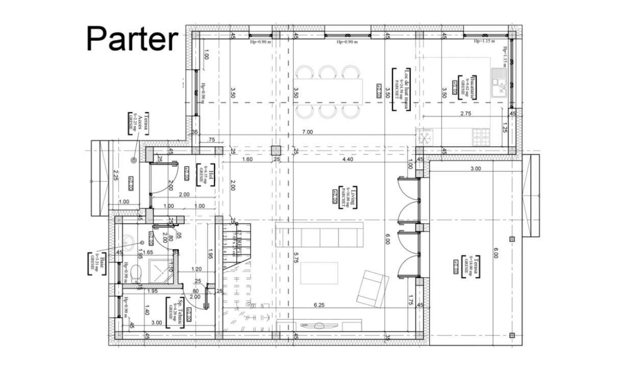
FOXFORT propune de vanzare casa tip individuala, cu un regim de inaltime Parter + 1 Etaj, situata in Sacalaz, zona Exterior Est, avand un numar de 5 camere, cu o suprafata utila de 159 mp si teren 803 mp. Anul constructiei este 2025, structura beton, material zidarie caramida. Imobilul dispune de urmatoarele utilitati: curent electric, gaz.
Compartimentare flexibila:
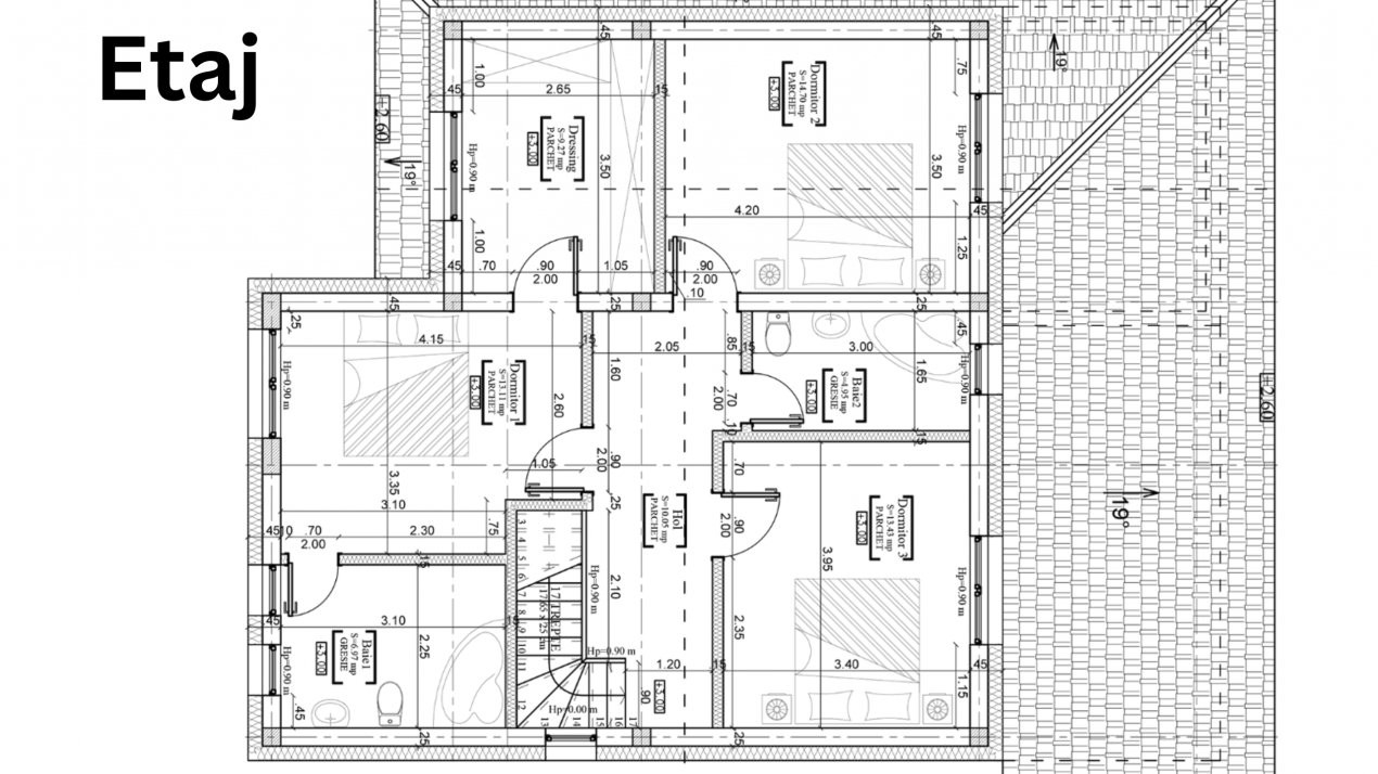
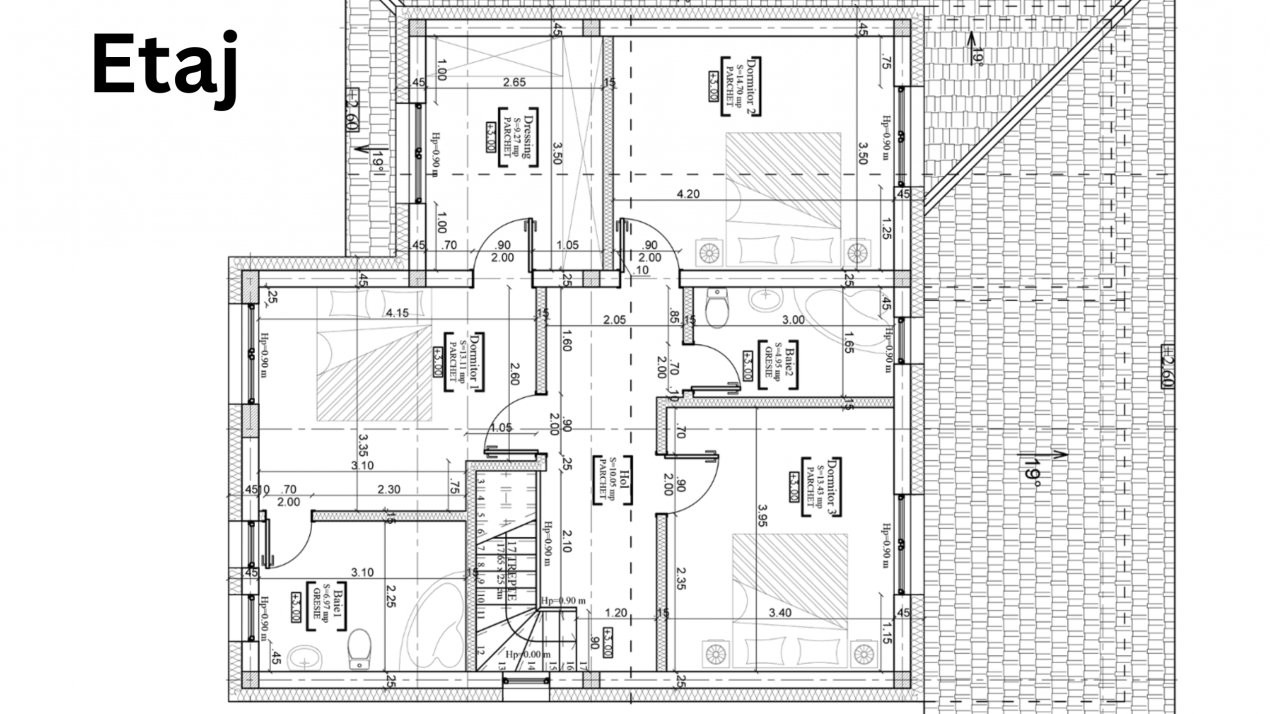
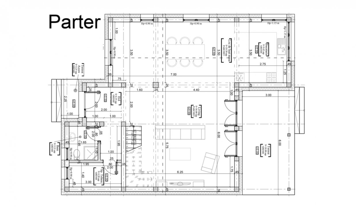
- Parter: Terasa acces, hol, living, dormitor, dinning, spatiu tehnic, baie;
- Etaj: 3 dormitoare, 2 bai, dressing, hol.
Finisaje interioare:
- Usa intrare: pvc;
- Usi interioare: fara'
- Tamplarie ferestre: pvc;
- Podele: nefinisat.
Interiorul imobilului vine cu o compartimentare adaptabila, configurabila in functie de nevoi si preferinte.
Imobilul dispune de gaz si curent bransat, locatie ideala aproape de oras intr-o zona in plina dezvoltare.
Casa se vinde la ROSU, la stadiul si amenajarile actuale.
Se poate oferi si la cheie cu termen de predare in 90 de zile, optiunea de a definitiva imprejmuirea si amenajarea curtii ramane la alegerea si cheltuiala viitorului proprietar.
Casa beneficiaza de o curte generoasa, 2 accese de pe doua strazi diferite si 2 locuri de parcare.
Pretul este de 189.990€ + comisionul standard al agentiei.
Se accepta ca si modalitate de plata surse proprii sau credit bancar.
Indicator performanta energetica: Clasa B
ID intern: V8213
Citeste mai mult
FOXFORT propune de vanzare casa tip individuala, cu un regim de inaltime Parter + 1 Etaj, situata in Sacalaz, zona Exterior Est, avand un numar de 5 camere, cu o suprafata utila de 159 mp si teren 803 mp. Anul constructiei este 2025, structura beton, material zidarie caramida. Imobilul dispune de urmatoarele utilitati: curent electric, gaz.
Compartimentare flexibila:
- Parter: Terasa acces, hol, living, dormitor, dinning, spatiu tehnic, baie;
- Etaj: 3 dormitoare, 2 bai, dressing, hol.
Finisaje interioare:
- Usa intrare: pvc;
- Usi interioare: fara'
- Tamplarie ferestre: pvc;
- Podele: nefinisat.
Interiorul imobilului vine cu o compartimentare adaptabila, configurabila in functie de nevoi si preferinte.
Imobilul dispune de gaz si curent bransat, locatie ideala aproape de oras intr-o zona in plina dezvoltare.
Casa se vinde la ROSU, la stadiul si amenajarile actuale.
Se poate oferi si la cheie cu termen de predare in 90 de zile, optiunea de a definitiva imprejmuirea si amenajarea curtii ramane la alegerea si cheltuiala viitorului proprietar.
Casa beneficiaza de o curte generoasa, 2 accese de pe doua strazi diferite si 2 locuri de parcare.
Pretul este de 189.990€ + comisionul standard al agentiei.
Se accepta ca si modalitate de plata surse proprii sau credit bancar.
Indicator performanta energetica: Clasa B
ID intern: V8213
Caracteristici
- ID:V8213
- Nr. camere:5
- Nr. dormitoare:4
- S. utila:159.00 mp
- S. terase:20.00 mp
- S. utila totala:179.00 mp
- S. construita:225.00 mp
- S. teren:803.00 mp
- Nr. bucatarii:1
- Nr. bai:3
- Nr. parcari:2
- Front stradal:57.00 m
- Nr. fronturi:2
- An constructie:2025
- Structura rezistenta:Beton
- Regim inaltime:P+1
- Orientare:Nord-Sud
- Clasa energetica:B
Casa individuala la ROSU, 5 camere, Sacalaz-Gaz si curent bransat Specificatii
Curent
Gaz
Ferestre PVC
Usa intrare PVC
Dressing
Bucatarie Nemobilata
Bucatarie Neutilata
Contor gaz
Nemobilat
Curte
Localizare
Contacteazǎ agentul acum
0373760385
Esti interesat de aceasta proprietate ?
Completeaza datele tale și te vom suna noi!
Te-ar putea interesa si:
Case de vânzare Mosnita Noua
Case de vânzare Sanandrei
Apartamente de vânzare Giroc
Terenuri de vânzare Timisoara
Recomandari
Contacteazǎ agentul acum
0373760385
Linkuri rapide filtrate dupa cele mai cautate zone si numarul de camere
Case de vânzare Sacalaz
Case de vânzare Sacalaz zona Exterior Est