Casa individuala 5 camere, Sacalaz - Toate utilitatiile, pozitionare excelenta
ID: V7540 Sacalaz, Est
774
188.990€





















Camere
5
Suprafata utila
107 mp
Bai
2
Front stradal
12 m
An constructie
2024
Casa individuala 5 camere, Sacalaz - Toate utilitatiile, pozitionare excelenta Descriere
Casa individuala cu 5 camere de vanzare in localitatea Sacalaz, zona Est.
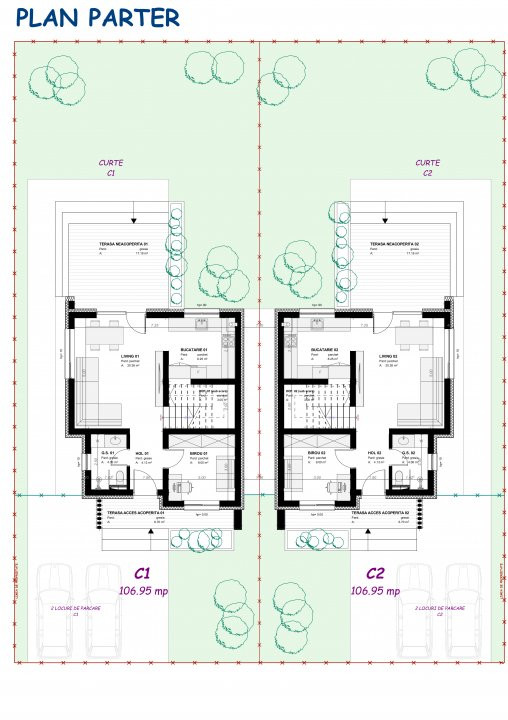
FOXFORT propune spre vanzare casa tip individuala, cu un regim de inaltime Parter + 1 Etaj, situata in Sacalaz, zona Est, avand un numar de 5 camere, cu o suprafata utila de 107 mp si teren 300 mp. Anul constructiei este 2024, structura beton, material zidarie caramida. Imobilul dispune de urmatoarele utilitati: curent electric, apa, canalizare, gaz.
Compartimentarea este dispusa dupa cum urmeaza:
- Parter: hol, living, baie, dormitor/birou, bucatarie, debara, 2 terase;
- Etaj: hol, 3 dormitoare, baie, balcon.
Finisajele interioare sunt moderne:
- Usa intrare: pvc;
- Usi interioare: celulare;
- Tamplarie ferestre: pvc;
- Podele: parchet, gresie.
Stadiul actual al constructiei este la ROSU.
Zidarie caramida CEMACOM 24 LM, geamuri Tripan Salamander 76 Premium.
Parterul dispune de o camera care poate fi folosita ca birou, cu acces direct pe terasa.
Casa se vinde nemobilata si neutilata, dispune de centrala proprie, incalzire prin pardoseala si 2 locuri de parcare.
Pretul este de 188.990€ + comisionul standard al agentiei.
Se accepta ca si modalitate de plata surse proprii sau credit bancar.
Indicator performanta energetica: Clasa A
ID intern: V7540
Citeste mai mult
FOXFORT propune spre vanzare casa tip individuala, cu un regim de inaltime Parter + 1 Etaj, situata in Sacalaz, zona Est, avand un numar de 5 camere, cu o suprafata utila de 107 mp si teren 300 mp. Anul constructiei este 2024, structura beton, material zidarie caramida. Imobilul dispune de urmatoarele utilitati: curent electric, apa, canalizare, gaz.
Compartimentarea este dispusa dupa cum urmeaza:
- Parter: hol, living, baie, dormitor/birou, bucatarie, debara, 2 terase;
- Etaj: hol, 3 dormitoare, baie, balcon.
Finisajele interioare sunt moderne:
- Usa intrare: pvc;
- Usi interioare: celulare;
- Tamplarie ferestre: pvc;
- Podele: parchet, gresie.
Stadiul actual al constructiei este la ROSU.
Zidarie caramida CEMACOM 24 LM, geamuri Tripan Salamander 76 Premium.
Parterul dispune de o camera care poate fi folosita ca birou, cu acces direct pe terasa.
Casa se vinde nemobilata si neutilata, dispune de centrala proprie, incalzire prin pardoseala si 2 locuri de parcare.
Pretul este de 188.990€ + comisionul standard al agentiei.
Se accepta ca si modalitate de plata surse proprii sau credit bancar.
Indicator performanta energetica: Clasa A
ID intern: V7540
Caracteristici
- ID:V7540
- Nr. camere:5
- Nr. dormitoare:4
- S. utila:107.00 mp
- S. terase:26.00 mp
- S. utila totala:133.00 mp
- S. construita:135.00 mp
- S. teren:300.00 mp
- Nr. bucatarii:1
- Nr. bai:2
- Nr. balcoane:1
- Nr. parcari:2
- Front stradal:12.00 m
- Nr. fronturi:1
- An constructie:2024
- Structura rezistenta:Beton
- Regim inaltime:P+1
- Orientare:Est-Vest
- Clasa energetica:A
Casa individuala 5 camere, Sacalaz - Toate utilitatiile, pozitionare excelenta Specificatii
Curent
Apa
Canalizare
Gaz
Centrala proprie
Incalzire pardoseala
Izolatie Exterior
Vopsea lavabila
Faianta
Parchet
Gresie
Ferestre PVC
Usa intrare PVC
Usa interior Celulare
Bucatarie Nemobilata
Bucatarie Neutilata
Apometre
Contor gaz
Nemobilat
Interfon
Curte
Localizare
Contacteazǎ agentul acum
0373760385
Esti interesat de aceasta proprietate ?
Completeaza datele tale și te vom suna noi!
Te-ar putea interesa si:
Case de vânzare Mosnita Noua
Case de vânzare Sanandrei
Apartamente de vânzare Giroc
Terenuri de vânzare Timisoara
Recomandari
Contacteazǎ agentul acum
0373760385
Linkuri rapide filtrate dupa cele mai cautate zone si numarul de camere
Case de vânzare Sacalaz
Case de vânzare Sacalaz zona Est