Aceasta proprietate a fost deja vanduta! Pentru oferte similare contactati agentul
COMISION 0% Duplex Mosnita Noua, 4 camere - Asfalt - Zona Centrala
ID: V8786 Mosnita Noua, Est
216
185.000€




















Camere
4
Suprafata utila
113 mp
Bai
2
Front stradal
9.50 m
An constructie
2018
COMISION 0% Duplex Mosnita Noua, 4 camere - Asfalt - Zona Centrala Descriere
Duplex modern cu 4 camere, terasa, gradina si foisor – complet mobilat si utilat
FOXFORT propune spre vanzare o locuinta moderna tip duplex, cu un regim de inaltime Parter + Mansarda, situata in Mosnita Noua, zona centrala, ideala pentru o familie care isi doreste confort, spatiu si un stil de viata linistit, dar aproape de oras. Casa are un numar de 4 camere, cu o suprafata utila de 113 mp si teren 308 mp. Anul constructiei este 2018, structura beton, material zidarie caramida. Imobilul dispune de urmatoarele utilitati: curent electric, apa, canalizare, gaz, catv, fibra optica si drum asfaltat. Sistem de irigare pentru gazon, terasa acoperita cu foisor si zona de gratar – locul perfect pentru relaxare in familie sau cu prietenii.
Casa se vinde mobilata si utilata. Imobilul dispune de centrala proprie cu incalzire prin pardoseala si 3 locuri de parcare.
Imobilul se afla in zona centrala din Mosnita Noua, la 3 minute de centru, parc, primarie si statie de transport in comun.
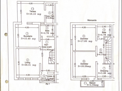
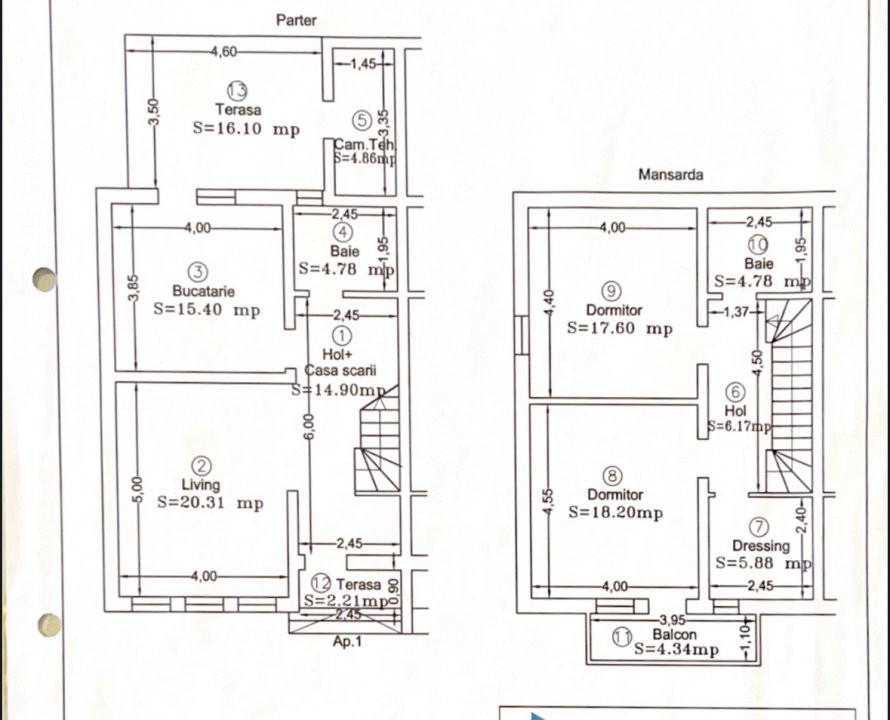
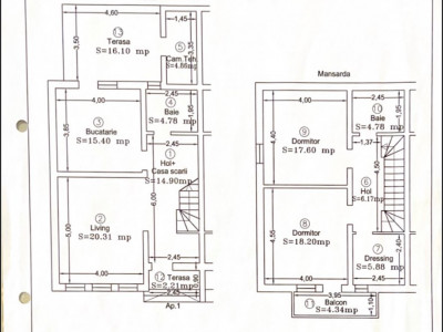
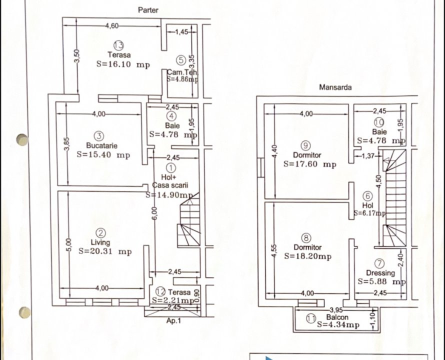
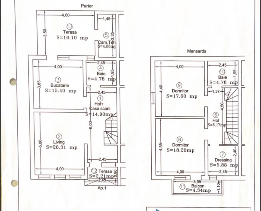
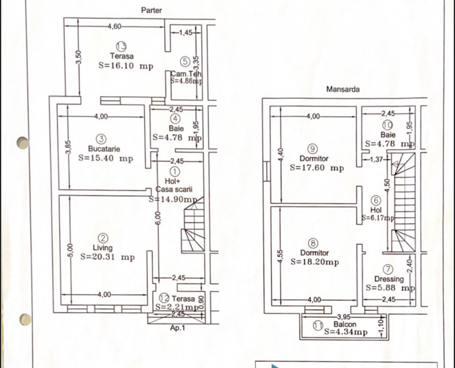
Compartimentarea este dispusa dupa cum urmeaza:
- Parter: hol, living, baie, bucatarie, debara, camera tehnica, terasa acoperita cu spatiu de depozitare curte;
- Mansarda: hol, 3 dormitoare, baie;
- Pod depozitare.
Finisajele interioare sunt moderne:
- Usa intrare: pvc;
- Usi interioare: celulare;
- Tamplarie ferestre: pvc;
- Podele: parchet, gresie.
Pretul este de 185.000€ - COMISION 0%.
Se accepta ca si modalitate de plata surse proprii sau credit bancar.
Indicator performanta energetica: Clasa A
ID intern: V8786
Citeste mai mult
FOXFORT propune spre vanzare o locuinta moderna tip duplex, cu un regim de inaltime Parter + Mansarda, situata in Mosnita Noua, zona centrala, ideala pentru o familie care isi doreste confort, spatiu si un stil de viata linistit, dar aproape de oras. Casa are un numar de 4 camere, cu o suprafata utila de 113 mp si teren 308 mp. Anul constructiei este 2018, structura beton, material zidarie caramida. Imobilul dispune de urmatoarele utilitati: curent electric, apa, canalizare, gaz, catv, fibra optica si drum asfaltat. Sistem de irigare pentru gazon, terasa acoperita cu foisor si zona de gratar – locul perfect pentru relaxare in familie sau cu prietenii.
Casa se vinde mobilata si utilata. Imobilul dispune de centrala proprie cu incalzire prin pardoseala si 3 locuri de parcare.
Imobilul se afla in zona centrala din Mosnita Noua, la 3 minute de centru, parc, primarie si statie de transport in comun.
Compartimentarea este dispusa dupa cum urmeaza:
- Parter: hol, living, baie, bucatarie, debara, camera tehnica, terasa acoperita cu spatiu de depozitare curte;
- Mansarda: hol, 3 dormitoare, baie;
- Pod depozitare.
Finisajele interioare sunt moderne:
- Usa intrare: pvc;
- Usi interioare: celulare;
- Tamplarie ferestre: pvc;
- Podele: parchet, gresie.
Pretul este de 185.000€ - COMISION 0%.
Se accepta ca si modalitate de plata surse proprii sau credit bancar.
Indicator performanta energetica: Clasa A
ID intern: V8786
Caracteristici
- ID:V8786
- Nr. camere:4
- Nr. dormitoare:3
- S. utila:113.00 mp
- S. terase:17.00 mp
- S. utila totala:130.00 mp
- S. construita:153.00 mp
- S. teren:308.00 mp
- Nr. bucatarii:1
- Nr. bai:2
- Nr. parcari:3
- Front stradal:9.50 m
- Nr. fronturi:1
- An constructie:2018
- Structura rezistenta:Beton
- Regim inaltime:P+M
- Orientare:Sud
- Clasa energetica:A
COMISION 0% Duplex Mosnita Noua, 4 camere - Asfalt - Zona Centrala Specificatii
Curent
Apa
Canalizare
Gaz
CATV
Fibra optica
Centrala proprie
Incalzire pardoseala
Izolatie Exterior
Vopsea lavabila
Faianta
Parchet
Gresie
Ferestre PVC
Rulouri PVC
Usa intrare PVC
Usa interior Celulare
Spatiu depozitare
Anexe
Bucatarie Mobilata
Bucatarie Utilata
Apometre
Contor gaz
Complet mobilat
Curte
Gradina
Localizare
Contacteazǎ agentul acum
0373760385
Esti interesat de aceasta proprietate ?
Completeaza datele tale și te vom suna noi!
Te-ar putea interesa si:
Case de vânzare Mosnita Noua
Case de vânzare Sanandrei
Apartamente de vânzare Giroc
Terenuri de vânzare Timisoara
Recomandari
Contacteazǎ agentul acum
0373760385
Linkuri rapide filtrate dupa cele mai cautate zone si numarul de camere
Case de vânzare Mosnita Noua
Case de vânzare Mosnita Noua zona Est