COMISION 0% Duplex cu 4 camere, 98 mp, Asfalt + toate utilitatile - Mosnita
ID: V8742 Mosnita Noua, Est
218
154.990€


















Camere
4
Suprafata utila
98 mp
Bai
2
Front stradal
9 m
An constructie
2025
COMISION 0% Duplex cu 4 camere, 98 mp, Asfalt + toate utilitatile - Mosnita Descriere
Duplex cu 4 camere de vanzare in localitatea Mosnita.
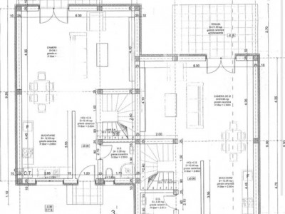
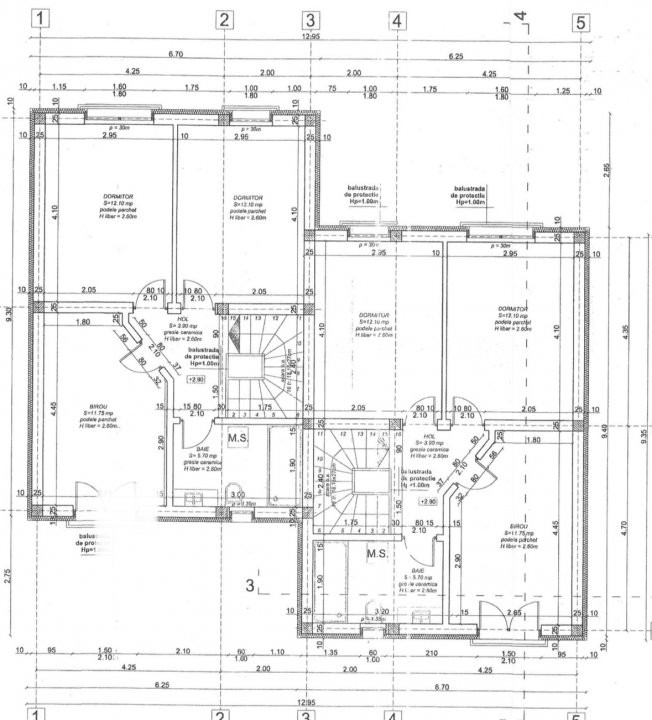
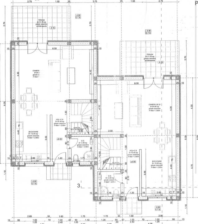
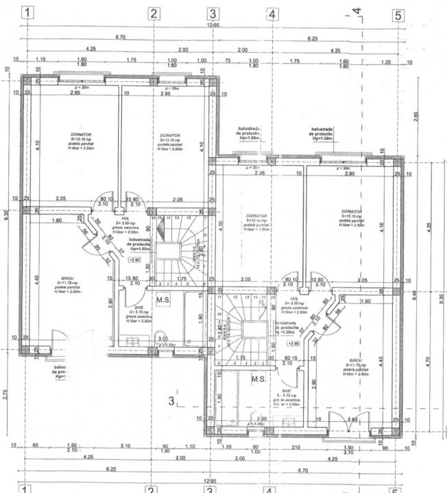
FOXFORT propune spre vanzare casa tip duplex, cu un regim de inaltime Parter + 1 Etaj situata in Mosnita, avand un numar de 4 camere, cu o suprafata utila de 98 mp si teren 263 mp. Anul constructiei este 2025, structura beton, material zidarie caramida. Imobilul dispune de urmatoarele utilitati: curent electric, apa, canalizare, gaz si drum asfaltat. Casa dispune de centrala proprie cu incalzire prin pardoseala, termostat de ambient pentru fiecare incapere si 2 locuri de parcare.
Finisajele interioare se pot alege de catre client.
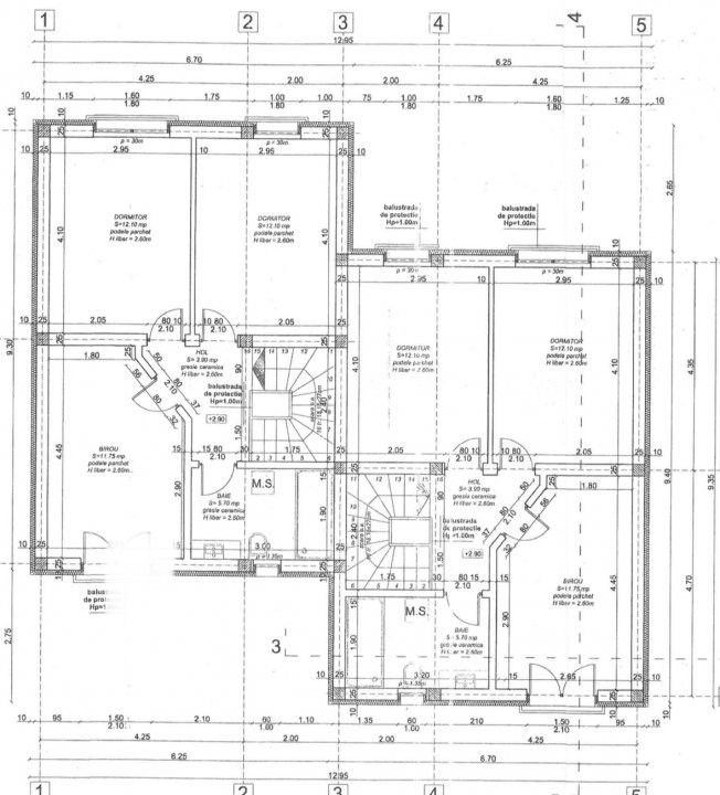
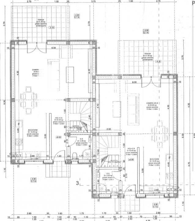
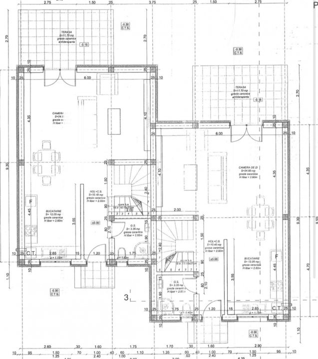
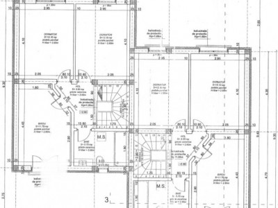
Compartimentarea este dispusa dupa cum urmeaza:
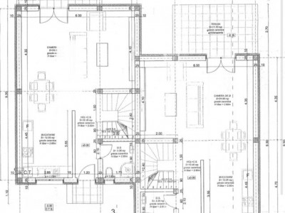
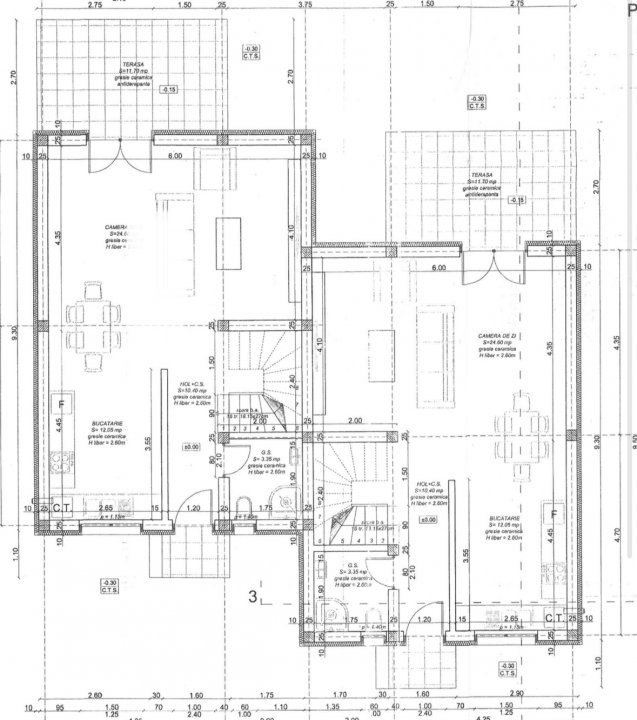
- Parter: hol, living, baie, bucatarie, terasa;
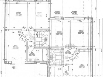
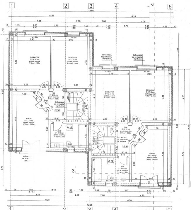
- Etaj: hol, 3 dormitoare, baie.
Finisajele interioare sunt moderne:
- Usa intrare: pvc;
- Usi interioare: celulare;
- Tamplarie ferestre: pvc;
- Podele: parchet, gresie.
Pretul este de 154.990€ - COMISION 0%.
Se accepta ca si modalitate de plata surse proprii sau credit bancar.
Indicator performanta energetica: Clasa B
ID intern: V8742
Citeste mai mult
FOXFORT propune spre vanzare casa tip duplex, cu un regim de inaltime Parter + 1 Etaj situata in Mosnita, avand un numar de 4 camere, cu o suprafata utila de 98 mp si teren 263 mp. Anul constructiei este 2025, structura beton, material zidarie caramida. Imobilul dispune de urmatoarele utilitati: curent electric, apa, canalizare, gaz si drum asfaltat. Casa dispune de centrala proprie cu incalzire prin pardoseala, termostat de ambient pentru fiecare incapere si 2 locuri de parcare.
Finisajele interioare se pot alege de catre client.
Compartimentarea este dispusa dupa cum urmeaza:
- Parter: hol, living, baie, bucatarie, terasa;
- Etaj: hol, 3 dormitoare, baie.
Finisajele interioare sunt moderne:
- Usa intrare: pvc;
- Usi interioare: celulare;
- Tamplarie ferestre: pvc;
- Podele: parchet, gresie.
Pretul este de 154.990€ - COMISION 0%.
Se accepta ca si modalitate de plata surse proprii sau credit bancar.
Indicator performanta energetica: Clasa B
ID intern: V8742
Caracteristici
- ID:V8742
- Nr. camere:4
- Nr. dormitoare:3
- S. utila:98.00 mp
- S. terase:14.00 mp
- S. utila totala:112.00 mp
- S. construita:132.00 mp
- S. teren:263.00 mp
- Nr. bucatarii:1
- Nr. bai:2
- Nr. parcari:2
- Front stradal:9.00 m
- Nr. fronturi:1
- An constructie:2025
- Structura rezistenta:Beton
- Regim inaltime:P+1
- Orientare:Sud
- Clasa energetica:B
COMISION 0% Duplex cu 4 camere, 98 mp, Asfalt + toate utilitatile - Mosnita Specificatii
Curent
Apa
Canalizare
Gaz
Centrala proprie
Incalzire pardoseala
Izolatie Exterior
Vopsea lavabila
Faianta
Parchet
Gresie
Ferestre PVC
Usa intrare PVC
Usa interior Celulare
Bucatarie Nemobilata
Bucatarie Neutilata
Apometre
Contor gaz
Nemobilat
Curte
Gradina
Localizare
Contacteazǎ agentul acum
0373760385
Esti interesat de aceasta proprietate ?
Completeaza datele tale și te vom suna noi!
Te-ar putea interesa si:
Case de vânzare Mosnita Noua
Case de vânzare Sanandrei
Apartamente de vânzare Giroc
Terenuri de vânzare Timisoara
Recomandari
Contacteazǎ agentul acum
0373760385
Linkuri rapide filtrate dupa cele mai cautate zone si numarul de camere
Case de vânzare Mosnita Noua
Case de vânzare Mosnita Noua zona Est