Casa insiruita cu 3 camere in Mosnita, zona noul Lidl
ID: V8526 Mosnita Noua, Est
651
148.990€















Camere
3
Suprafata utila
78 mp
Bai
2
Front stradal
5 m
Casa insiruita cu 3 camere in Mosnita, zona noul Lidl Descriere
Case insiruite cu 3 camere de vanzare in localitatea Mosnita.
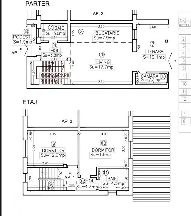
FOXFORT propune spre vanzare casa tip case insiruite, cu un regim de inaltime Parter + 1 Etaj, situata in Mosnita, avand un numar de 3 camere, cu o suprafata utila de 78 mp si teren 100 mp. Anul constructiei este 2021, structura beton, material zidarie caramida. Imobilul dispune de urmatoarele utilitati: curent electric, apa, gaz, fosa septica.
Compartimentarea este dispusa dupa cum urmeaza:
- Parter: hol, living, baie, bucatarie, terasa inchisa;
- Etaj: hol, 2 dormitoare, baie.
Finisajele interioare sunt moderne:
- Usa intrare: pvc;
- Usi interioare: celulare;
- Tamplarie ferestre: pvc;
- Podele: parchet, gresie.
Casa se vinde mobilata si semiutilata: plita, cuptor, hota.
Imobilul dispune de centrala proprie cu incalzire prin pardoseala si 1 loc de parcare.
Pretul este de 148.990€ + comisionul standard al agentiei.
Se accepta ca si modalitate de plata surse proprii sau credit bancar.
Indicator performanta energetica: Clasa B
ID intern: V8526
Citeste mai mult
FOXFORT propune spre vanzare casa tip case insiruite, cu un regim de inaltime Parter + 1 Etaj, situata in Mosnita, avand un numar de 3 camere, cu o suprafata utila de 78 mp si teren 100 mp. Anul constructiei este 2021, structura beton, material zidarie caramida. Imobilul dispune de urmatoarele utilitati: curent electric, apa, gaz, fosa septica.
Compartimentarea este dispusa dupa cum urmeaza:
- Parter: hol, living, baie, bucatarie, terasa inchisa;
- Etaj: hol, 2 dormitoare, baie.
Finisajele interioare sunt moderne:
- Usa intrare: pvc;
- Usi interioare: celulare;
- Tamplarie ferestre: pvc;
- Podele: parchet, gresie.
Casa se vinde mobilata si semiutilata: plita, cuptor, hota.
Imobilul dispune de centrala proprie cu incalzire prin pardoseala si 1 loc de parcare.
Pretul este de 148.990€ + comisionul standard al agentiei.
Se accepta ca si modalitate de plata surse proprii sau credit bancar.
Indicator performanta energetica: Clasa B
ID intern: V8526
Caracteristici
- ID:V8526
- Nr. camere:3
- Nr. dormitoare:2
- S. utila:78.00 mp
- S. terase:12.00 mp
- S. utila totala:90.00 mp
- S. construita:105.00 mp
- S. teren:100.00 mp
- Nr. bucatarii:1
- Nr. bai:2
- Nr. parcari:1
- Front stradal:5.00 m
- Nr. fronturi:1
- Structura rezistenta:Beton
- Regim inaltime:P+1
- Orientare:Vest
- Clasa energetica:B
Casa insiruita cu 3 camere in Mosnita, zona noul Lidl Specificatii
Curent
Apa
Gaz
Fosa septica
Centrala proprie
Incalzire pardoseala
Aer conditionat
Izolatie Exterior
Vopsea lavabila
Faianta
Parchet
Gresie
Ferestre PVC
Usa intrare PVC
Usa interior Celulare
Bucatarie Mobilata
Bucatarie Utilata
Apometre
Contor gaz
Complet mobilat
Curte
Localizare
Contacteazǎ agentul acum
0373760385
Esti interesat de aceasta proprietate ?
Completeaza datele tale și te vom suna noi!
Te-ar putea interesa si:
Case de vânzare Mosnita Noua
Case de vânzare Sanandrei
Apartamente de vânzare Giroc
Terenuri de vânzare Timisoara
Recomandari
Contacteazǎ agentul acum
0373760385
Linkuri rapide filtrate dupa cele mai cautate zone si numarul de camere
Case de vânzare Mosnita Noua
Case de vânzare Mosnita Noua zona Est