Duplex Mosnita, 4 camere, 2 bai - Toate utilitatile - Drumul Boilor
ID: V9723 Mosnita Noua, Central
4
104.990€



















Camere
4
Suprafata utila
94 mp
Bai
2
Front stradal
9 m
An constructie
2026
Duplex Mosnita, 4 camere, 2 bai - Toate utilitatile - Drumul Boilor Descriere
Duplex cu 4 camere de vanzare in localitatea Mosnita.
FOXFORT propune spre vanzare casa tip duplex, cu un regim de inaltime Parter + 1 Etaj, situata in Mosnita, avand un numar de 4 camere, cu o suprafata utila de 94 mp si teren 300 mp. Anul constructiei este 2026, structura beton, material zidarie caramida. Imobilul dispune de urmatoarele utilitati: curent electric, apa, canalizare, gaz, fibra optica si iluminat stradal. Finisajele interioare se pot alege de catre client.
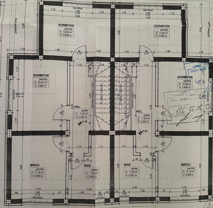
Compartimentarea este dispusa dupa cum urmeaza:
- Parter: hol, living, baie, spatiu depozitare, bucatarie, terasa acoperita;
- Etaj: hol, 3 dormitoare, baie;
- Pod de depozitare.
Finisajele interioare sunt moderne:
- Usa intrare: pvc;
- Usi interioare: celulare;
- Tamplarie ferestre: pvc;
- Podele: parchet, gresie.
Casa dispune de centrala proprie cu incalzire prin pardoseala si 2 locuri de parcare.
Pretul este de 104.990€ - COMISION 0%.
Se accepta ca si modalitate de plata surse proprii sau credit bancar.
Indicator performanta energetica: Clasa B
ID intern: V9723
Citeste mai mult
FOXFORT propune spre vanzare casa tip duplex, cu un regim de inaltime Parter + 1 Etaj, situata in Mosnita, avand un numar de 4 camere, cu o suprafata utila de 94 mp si teren 300 mp. Anul constructiei este 2026, structura beton, material zidarie caramida. Imobilul dispune de urmatoarele utilitati: curent electric, apa, canalizare, gaz, fibra optica si iluminat stradal. Finisajele interioare se pot alege de catre client.
Compartimentarea este dispusa dupa cum urmeaza:
- Parter: hol, living, baie, spatiu depozitare, bucatarie, terasa acoperita;
- Etaj: hol, 3 dormitoare, baie;
- Pod de depozitare.
Finisajele interioare sunt moderne:
- Usa intrare: pvc;
- Usi interioare: celulare;
- Tamplarie ferestre: pvc;
- Podele: parchet, gresie.
Casa dispune de centrala proprie cu incalzire prin pardoseala si 2 locuri de parcare.
Pretul este de 104.990€ - COMISION 0%.
Se accepta ca si modalitate de plata surse proprii sau credit bancar.
Indicator performanta energetica: Clasa B
ID intern: V9723
Caracteristici
- ID:V9723
- Nr. camere:4
- Nr. dormitoare:3
- S. utila:94.00 mp
- S. terase:14.00 mp
- S. utila totala:108.00 mp
- S. construita:130.00 mp
- S. teren:300.00 mp
- Nr. bucatarii:1
- Nr. bai:2
- Nr. parcari:2
- Front stradal:9.00 m
- Nr. fronturi:1
- An constructie:2026
- Structura rezistenta:Beton
- Regim inaltime:P+1
- Orientare:Sud
- Clasa energetica:B
Duplex Mosnita, 4 camere, 2 bai - Toate utilitatile - Drumul Boilor Specificatii
Curent
Apa
Canalizare
Gaz
Fibra optica
Centrala proprie
Incalzire pardoseala
Izolatie Exterior
Vopsea lavabila
Faianta
Parchet
Gresie
Ferestre PVC
Usa intrare PVC
Usa interior Celulare
WC Serviciu
Bucatarie Nemobilata
Bucatarie Neutilata
Apometre
Contor gaz
Nemobilat
Curte
Gradina
Localizare
Contacteazǎ agentul acum
0373760385
Esti interesat de aceasta proprietate ?
Completeaza datele tale și te vom suna noi!
Te-ar putea interesa si:
Case de vânzare Mosnita Noua
Case de vânzare Sanandrei
Apartamente de vânzare Giroc
Terenuri de vânzare Timisoara
Recomandari
Contacteazǎ agentul acum
0373760385
Linkuri rapide filtrate dupa cele mai cautate zone si numarul de camere
Case de vânzare Mosnita Noua
Case de vânzare Mosnita Noua zona Central