Duplex modern cu 5 camere si 2 bai in Ghiroda
ID: V9524 Ghiroda, Nord
8
186.990€









Camere
6
Suprafata utila
141 mp
Bai
2
Front stradal
10 m
An constructie
2024
Duplex modern cu 5 camere si 2 bai in Ghiroda Descriere
Duplex modern in Ghiroda cu 5 camere si 2 bai.
FOXFORT propune spre vanzare un duplex modern cu o suprafata utila de 141 mp si teren de 421 mp, structurat astfel:
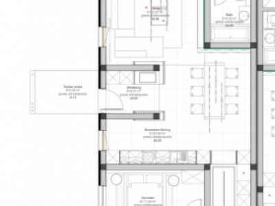
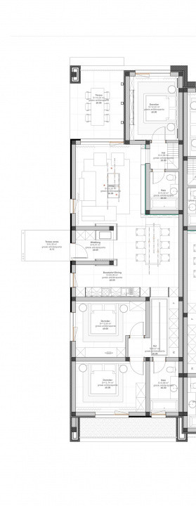
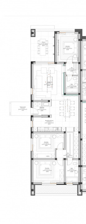
Parter:
- Hol acces;
- Bucatarie deschisa cu posibilitate de inchidere cu sticla;
- Dinning spatios;
- Living spatioas, cu iesire direct pe terasa, cu tavan inalt si posibilitate semineu (cos existent);
- 3 Dormitore cu geamuri mari, 2 in partea din fata a casei si unul in spate, cu vedere spre gradina;
- 2 bai, una cu cada si una cu dus;
- Terasa acoperita de 14 mp;
- Camara.
Mansarda:
- Hol;
- Dormitor/Birou cu vedere spre gradina;
- Spatiu depozitare izolat si mansardat.
Detalii tehnice:
- Structura solida din beton armat, zidaria interioara exterioara cu bloguri de caramida CEMACON 25cm;
- Termoizolatia exterioara executata cu polistiren expandat EPS 80 10cm grosime;
- Tencuieli mecanizate , sape turnate mecanizat;
- Acoperis tigla Bramac;
- Incalzire in pardoseala de calitate superioara;
- Curent trifazic;
- Utilitati bucatarie de vara preinstalate in dreptul terasei;
- Geamuri Barrier PREMIUM , 4 anotimpuri, (tripane, 3 garnituri).
Imobilul dispune de toate utilitatile.
Pret:
- 186.990€ - interior la alb (zugravit, fara usi, pardoseala si bai nemobilate) + comisionul standard al agentiei.
- 219.990€ - finisat + comisionul standard al agentiei.
Se accepta ca si modalitate de plata surse proprii sau credit bancar.
ID intern V9524
Citeste mai mult
FOXFORT propune spre vanzare un duplex modern cu o suprafata utila de 141 mp si teren de 421 mp, structurat astfel:
Parter:
- Hol acces;
- Bucatarie deschisa cu posibilitate de inchidere cu sticla;
- Dinning spatios;
- Living spatioas, cu iesire direct pe terasa, cu tavan inalt si posibilitate semineu (cos existent);
- 3 Dormitore cu geamuri mari, 2 in partea din fata a casei si unul in spate, cu vedere spre gradina;
- 2 bai, una cu cada si una cu dus;
- Terasa acoperita de 14 mp;
- Camara.
Mansarda:
- Hol;
- Dormitor/Birou cu vedere spre gradina;
- Spatiu depozitare izolat si mansardat.
Detalii tehnice:
- Structura solida din beton armat, zidaria interioara exterioara cu bloguri de caramida CEMACON 25cm;
- Termoizolatia exterioara executata cu polistiren expandat EPS 80 10cm grosime;
- Tencuieli mecanizate , sape turnate mecanizat;
- Acoperis tigla Bramac;
- Incalzire in pardoseala de calitate superioara;
- Curent trifazic;
- Utilitati bucatarie de vara preinstalate in dreptul terasei;
- Geamuri Barrier PREMIUM , 4 anotimpuri, (tripane, 3 garnituri).
Imobilul dispune de toate utilitatile.
Pret:
- 186.990€ - interior la alb (zugravit, fara usi, pardoseala si bai nemobilate) + comisionul standard al agentiei.
- 219.990€ - finisat + comisionul standard al agentiei.
Se accepta ca si modalitate de plata surse proprii sau credit bancar.
ID intern V9524
Caracteristici
- ID:V9524
- Nr. camere:6
- Nr. dormitoare:4
- S. utila:141.00 mp
- S. terase:14.00 mp
- S. utila totala:155.00 mp
- S. construita:185.00 mp
- S. teren:421.00 mp
- Nr. bucatarii:1
- Nr. bai:2
- Nr. parcari:2
- Front stradal:10.00 m
- Nr. fronturi:1
- An constructie:2024
- Structura rezistenta:Beton
- Regim inaltime:P+M
- Clasa energetica:A
Duplex modern cu 5 camere si 2 bai in Ghiroda Specificatii
Curent
Apa
Canalizare
Gaz
Curent trifazic
CATV
Acces internet
Centrala proprie
Incalzire pardoseala
Aer conditionat
Izolatie Exterior
Vopsea lavabila
Faianta
Parchet
Gresie
Ferestre PVC
Ferestre Termopan
Usa intrare PVC
Usa interior Celulare
Bucatarie Nemobilata
Bucatarie Neutilata
Apometre
Contor gaz
Nemobilat
Gradina
Localizare
Contacteazǎ agentul acum
0373760385
Esti interesat de aceasta proprietate ?
Completeaza datele tale și te vom suna noi!
Te-ar putea interesa si:
Case de vânzare Mosnita Noua
Case de vânzare Sanandrei
Apartamente de vânzare Giroc
Terenuri de vânzare Timisoara
Recomandari
Contacteazǎ agentul acum
0373760385
Linkuri rapide filtrate dupa cele mai cautate zone si numarul de camere
Case de vânzare Ghiroda
Case de vânzare Ghiroda zona Nord