Duplex 5 camere spatios, cu 3 locuri de parcare - Dumbravita
ID: V6719 Dumbravita
8
258.990€























Camere
5
Suprafata utila
120 mp
Bai
2
Front stradal
1 m
An constructie
2023
Duplex 5 camere spatios, cu 3 locuri de parcare - Dumbravita Descriere
Duplex cu 5 camere de vanzare in localitatea Dumbravita.
FOXFORT propune spre vanzare casa tip duplex, cu un regim de inaltime Parter + 1 Etaj, situata in Dumbravita, avand un numar de 5 camere, cu o suprafata utila de 120 mp si teren 300 mp. Anul constructiei este 2026, structura beton, material zidarie caramida. Imobilul dispune de urmatoarele utilitati: curent electric, apa, canalizare, gaz, catv, fibra optica. Casa dispune de centrala proprie cu incalzire prin pardoseala si 3 locuri de parcare. Finisajele se pot alege de catre client.
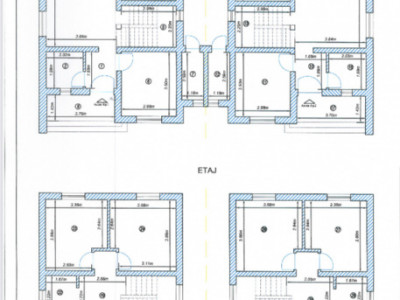
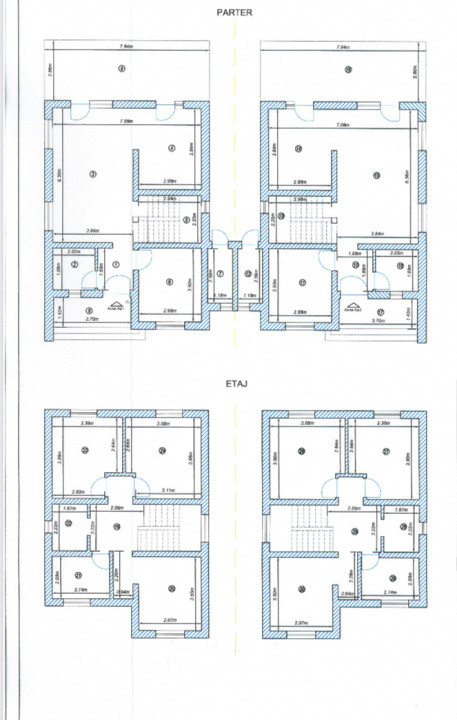
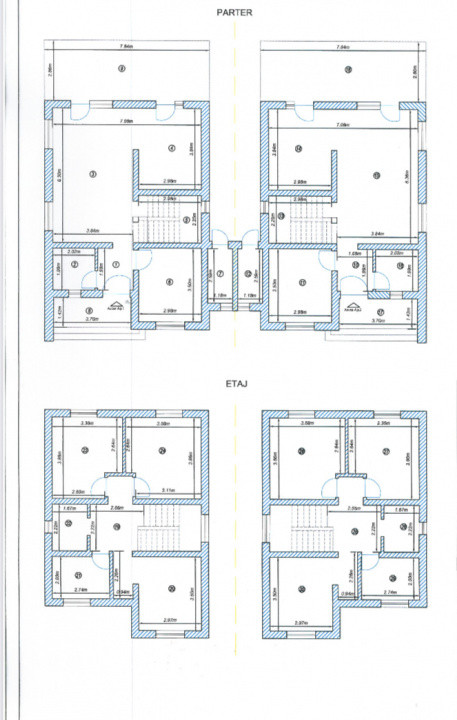
Compartimentarea este dispusa dupa cum urmeaza:
- Parter: hol, living, 2 bai, birou/ camera ,bucatarie, terasa;
- Etaj: hol, 3 dormitoare, baie;
Finisajele interioare sunt moderne:
- Usa intrare: pvc;
- Usi interioare: celulare;
- Tamplarie ferestre: pvc;
- Podele: parchet, gresie.
Pretul este de 258.990€ - COMISION 0%.
Se accepta ca si modalitate de plata surse proprii sau credit bancar.
Indicator performanta energetica: Clasa A
ID intern: V6379
Citeste mai mult
FOXFORT propune spre vanzare casa tip duplex, cu un regim de inaltime Parter + 1 Etaj, situata in Dumbravita, avand un numar de 5 camere, cu o suprafata utila de 120 mp si teren 300 mp. Anul constructiei este 2026, structura beton, material zidarie caramida. Imobilul dispune de urmatoarele utilitati: curent electric, apa, canalizare, gaz, catv, fibra optica. Casa dispune de centrala proprie cu incalzire prin pardoseala si 3 locuri de parcare. Finisajele se pot alege de catre client.
Compartimentarea este dispusa dupa cum urmeaza:
- Parter: hol, living, 2 bai, birou/ camera ,bucatarie, terasa;
- Etaj: hol, 3 dormitoare, baie;
Finisajele interioare sunt moderne:
- Usa intrare: pvc;
- Usi interioare: celulare;
- Tamplarie ferestre: pvc;
- Podele: parchet, gresie.
Pretul este de 258.990€ - COMISION 0%.
Se accepta ca si modalitate de plata surse proprii sau credit bancar.
Indicator performanta energetica: Clasa A
ID intern: V6379
Caracteristici
- ID:V6719
- Nr. camere:5
- Nr. dormitoare:4
- S. utila:120.00 mp
- S. terase:22.00 mp
- S. utila totala:142.00 mp
- S. construita:144.00 mp
- S. teren:300.00 mp
- Nr. bucatarii:1
- Nr. bai:2
- Nr. parcari:3
- Front stradal:1.00 m
- Nr. fronturi:115
- An constructie:2023
- Structura rezistenta:Beton
- Regim inaltime:P+1
- Orientare:Est
- Clasa energetica:A
Duplex 5 camere spatios, cu 3 locuri de parcare - Dumbravita Specificatii
Curent
Apa
Canalizare
Gaz
CATV
Fibra optica
Centrala proprie
Incalzire pardoseala
Izolatie Exterior
Vopsea lavabila
Faianta
Parchet
Gresie
Ferestre PVC
Usa intrare PVC
Usa interior Celulare
Dressing
Bucatarie Nemobilata
Bucatarie Neutilata
Apometre
Contor gaz
Nemobilat
Curte
Localizare
Contacteazǎ agentul acum
0373760385
Esti interesat de aceasta proprietate ?
Completeaza datele tale și te vom suna noi!
Te-ar putea interesa si:
Case de vânzare Mosnita Noua
Case de vânzare Sanandrei
Apartamente de vânzare Giroc
Terenuri de vânzare Timisoara
Recomandari
Contacteazǎ agentul acum
0373760385
Linkuri rapide filtrate dupa cele mai cautate zone si numarul de camere
Case de vânzare Dumbravita