COMISION 0% - Apartament cu 3 camere la etajul 1 in Giroc, zona ESO
ID: V7653 Giroc, Sud
777
119.990€ + TVA










Camere
3
Suprafata utila
71 mp
Etaj
Etaj 1
Bai
1
An constructie
2025
COMISION 0% - Apartament cu 3 camere la etajul 1 in Giroc, zona ESO Descriere
Apartament cu 3 camere de vanzare in Giroc, zona ESO.
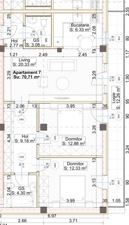
FOXFORT propune spre vanzare un apartament cu 3 camere, open space, situat in localitatea Giroc, zona ESO, aflat la etajul 1 intr-un bloc cu regim de inaltime pe Parter + 4 Etaje. Anul constructiei 2025, structura beton, material zidarie caramida. Suprafata utila de 71 mp + balcon de 12 mp. Incalzirea se realizeaza prin intermediul centralei proprii prin pardoseala.
Apartamentul este structurat astfel:
- Hol;
- Baie;
- Living cu bucatarie open space si iesire pe balcon 14 mp;
- 2 Dormitoare cu iesire pe balcon;
- Hol intermediar.
Finisajele interioare sunt moderne
- Usa intrare: metal;
- Usi interioare: celulare;
- Tamplarie ferestre: pvc;
- Podele: parchet, gresie.
Pretul este de 119990 euro + TVA - COMISION 0%
Se accepta ca si modalitate de plata surse proprii sau credit bancar.
ID intern: V7653
Citeste mai mult
FOXFORT propune spre vanzare un apartament cu 3 camere, open space, situat in localitatea Giroc, zona ESO, aflat la etajul 1 intr-un bloc cu regim de inaltime pe Parter + 4 Etaje. Anul constructiei 2025, structura beton, material zidarie caramida. Suprafata utila de 71 mp + balcon de 12 mp. Incalzirea se realizeaza prin intermediul centralei proprii prin pardoseala.
Apartamentul este structurat astfel:
- Hol;
- Baie;
- Living cu bucatarie open space si iesire pe balcon 14 mp;
- 2 Dormitoare cu iesire pe balcon;
- Hol intermediar.
Finisajele interioare sunt moderne
- Usa intrare: metal;
- Usi interioare: celulare;
- Tamplarie ferestre: pvc;
- Podele: parchet, gresie.
Pretul este de 119990 euro + TVA - COMISION 0%
Se accepta ca si modalitate de plata surse proprii sau credit bancar.
ID intern: V7653
Caracteristici
- ID:V7653
- Nr. camere:3
- Nr. dormitoare:2
- S. utila:71.00 mp
- S. balcoane:12.00 mp
- S. utila totala:83.00 mp
- S. construita:85.20 mp
- Comp.:Open space
- Confort:1
- Etaj:Etaj 1
- Nr. bucatarii:1
- Nr. bai:1
- Nr. balcoane:1
- An constructie:2025
- Structura:Beton
- Tip imobil:Bloc
- Regim inaltime:P+4
- Orientare:Vest
COMISION 0% - Apartament cu 3 camere la etajul 1 in Giroc, zona ESO Specificatii
Curent
Apa
Canalizare
Gaz
CATV
Fibra optica
Centrala proprie
Incalzire pardoseala
Izolatie Exterior
Vopsea lavabila
Faianta
Parchet
Gresie
Ferestre PVC
Usa intrare Metal
Usa interior Celulare
Bucatarie Nemobilata
Bucatarie Neutilata
Apometre
Contor gaz
Nemobilat
Interfon
Localizare
Contacteazǎ agentul acum
0373760385
Esti interesat de aceasta proprietate ?
Completeaza datele tale și te vom suna noi!
Te-ar putea interesa si:
Case de vânzare Mosnita Noua
Case de vânzare Sanandrei
Apartamente de vânzare Giroc
Terenuri de vânzare Timisoara
Recomandari
Contacteazǎ agentul acum
0373760385
Linkuri rapide filtrate dupa cele mai cautate zone si numarul de camere
Apartamente de vânzare Giroc
Apartamente de vânzare Giroc zona Sud
Apartamente de vânzare Giroc 3 camere
Apartamente de vânzare Giroc zona Sud 3 camere