Apartament cu 3 camere, 2 bai, Lift, Cartier Planete - Giroc - ID V2770
ID: V2770 Giroc
704
161.300€













Camere
3
Suprafata utila
74.06 mp
Etaj
Etaj 1
Bai
2
Parcari
1
An constructie
2023
Apartament cu 3 camere, 2 bai, Lift, Cartier Planete - Giroc - ID V2770 Descriere
ID intern: V2770
Apartament cu 3 camere de vanzare in Giroc, zona Planetelor.
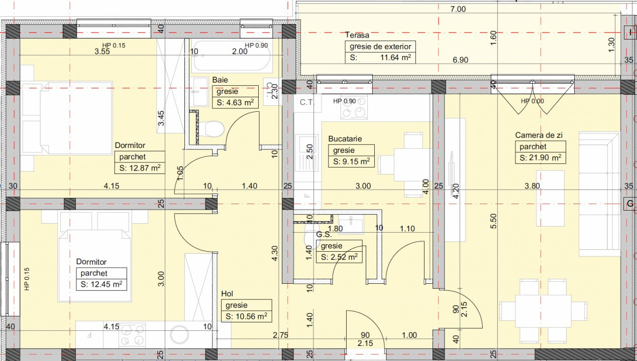
FOXFORT Imobiliare propune de vanzare un apartament cu 3 camere, decomandat, situat in localitatea Giroc, zona Planetelor, aflat la etajul 1 intr-un bloc cu regim de inaltime pe Parter + 3 Etaje. Anul constructiei 2023, structura beton, material zidarie caramida. Suprafata utila de 74 mp + terasa de 11,64 mp.
Apartamentul este structurat astfel:
- Hol;
- Bucatarie;
- Baie;
- Living cu balcon;
- Dormitor cu balcon;
- Hol intermediar;
- etc.
Finisajele interioare sunt moderne:
- Usa intrare: metal;
- Usi interioare: celulare;
- Tamplarie ferestre: pvc;
- Podele: parchet, gresie.
Incalzirea se realizeaza prin intermediul centralei proprii cu incalzire in pardoseala. Apartamentul dispune de 1 loc de parcare inclus in pret.,
Pretul este de 161.300 € + comisionul standard al agentiei.
Se accepta ca si modalitate de plata cash si credit bancar.
Pentru a vedea toate ofertele valabile actualizate periodic, cu preturi reale si ultimele anunturi imobiliare adaugate intrati acum pe site-ul oficial FOXFORT Imobiliare: foxfort.ro
Precizati intotdeauna ca ati vazut oferta cu ID: V2770
Sediu agentie: Strada Mures, Nr. 39A, Timisoara, Timis
Mai multe detalii la telefon: 0374.069.727
Citeste mai mult
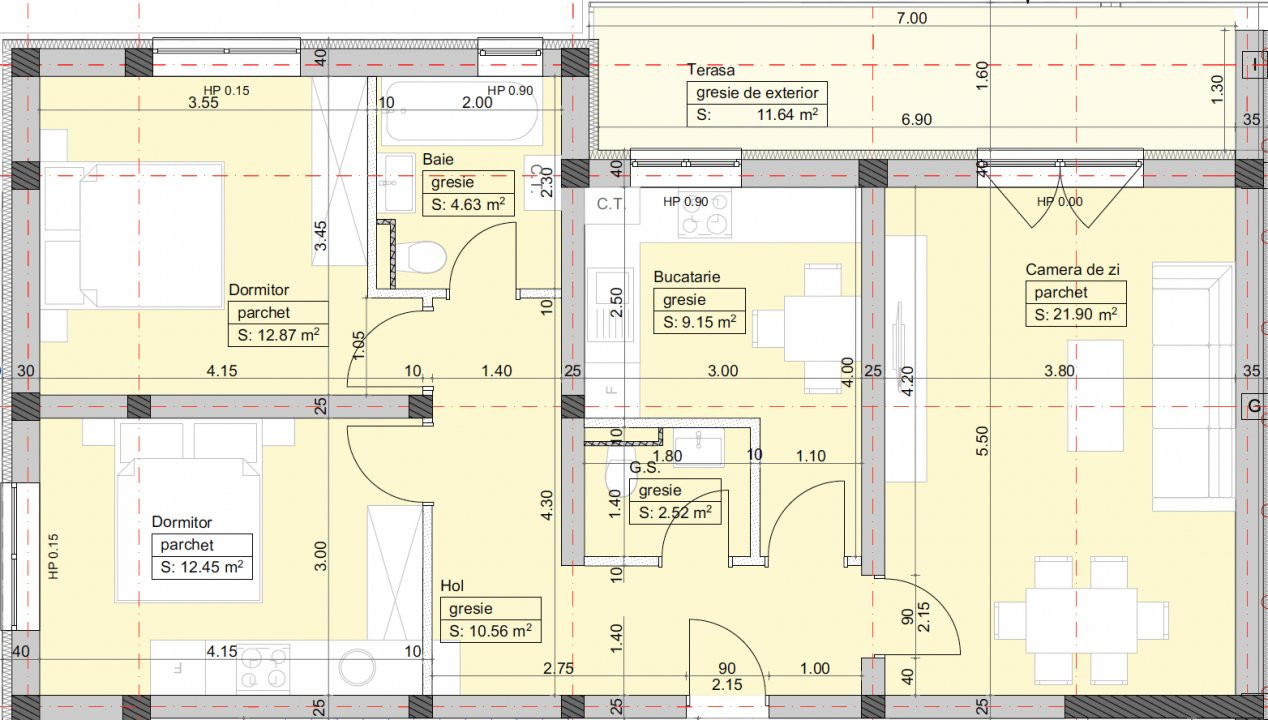
Apartament cu 3 camere de vanzare in Giroc, zona Planetelor.
FOXFORT Imobiliare propune de vanzare un apartament cu 3 camere, decomandat, situat in localitatea Giroc, zona Planetelor, aflat la etajul 1 intr-un bloc cu regim de inaltime pe Parter + 3 Etaje. Anul constructiei 2023, structura beton, material zidarie caramida. Suprafata utila de 74 mp + terasa de 11,64 mp.
Apartamentul este structurat astfel:
- Hol;
- Bucatarie;
- Baie;
- Living cu balcon;
- Dormitor cu balcon;
- Hol intermediar;
- etc.
Finisajele interioare sunt moderne:
- Usa intrare: metal;
- Usi interioare: celulare;
- Tamplarie ferestre: pvc;
- Podele: parchet, gresie.
Incalzirea se realizeaza prin intermediul centralei proprii cu incalzire in pardoseala. Apartamentul dispune de 1 loc de parcare inclus in pret.,
Pretul este de 161.300 € + comisionul standard al agentiei.
Se accepta ca si modalitate de plata cash si credit bancar.
Pentru a vedea toate ofertele valabile actualizate periodic, cu preturi reale si ultimele anunturi imobiliare adaugate intrati acum pe site-ul oficial FOXFORT Imobiliare: foxfort.ro
Precizati intotdeauna ca ati vazut oferta cu ID: V2770
Sediu agentie: Strada Mures, Nr. 39A, Timisoara, Timis
Mai multe detalii la telefon: 0374.069.727
Caracteristici
- ID:V2770
- Nr. camere:3
- Nr. dormitoare:2
- S. utila:74.06 mp
- S. terase:11.64 mp
- S. utila totala:85.70 mp
- S. construita:102.81 mp
- Comp.:Decomandat
- Confort:1
- Etaj:Etaj 1
- Nr. bucatarii:1
- Nr. bai:2
- Nr. parcari:1
- An constructie:2023
- Structura:Beton
- Tip imobil:Bloc
- Regim inaltime:P+3
- Orientare:Mixta
Apartament cu 3 camere, 2 bai, Lift, Cartier Planete - Giroc - ID V2770 Specificatii
Curent
Apa
Canalizare
Gaz
CATV
Fibra optica
Centrala proprie
Incalzire pardoseala
Izolatie Exterior
Vopsea lavabila
Faianta
Parchet
Gresie
Ferestre PVC
Usa intrare Metal
Usa interior Celulare
Apometre
Contor gaz
Videointerfon
Lift
Localizare
Contacteazǎ agentul acum
0373760385
Esti interesat de aceasta proprietate ?
Completeaza datele tale și te vom suna noi!
Te-ar putea interesa si:
Case de vânzare Mosnita Noua
Case de vânzare Sanandrei
Apartamente de vânzare Giroc
Terenuri de vânzare Timisoara
Recomandari
Contacteazǎ agentul acum
0373760385
Linkuri rapide filtrate dupa cele mai cautate zone si numarul de camere
Apartamente de vânzare Giroc
Apartamente de vânzare Giroc 3 camere